Houzz Logo Print
matty_mccarthy

Conundrum - Flip/Reversal of floorploan?

19 days ago

Hi all,


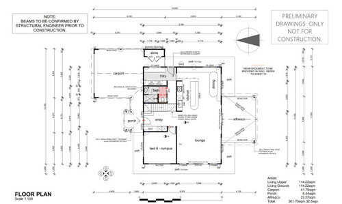
What: North-to-street orientation home renovation for a family of 6.


The question: Do I flip this floor plan and move the home towards the western boundary to open up the eastern corridor? (currently ~2m east & ~4m west side access)


My thoughts are yes to mitigate the harsh western sun and allow better eastern light into the ground floor.


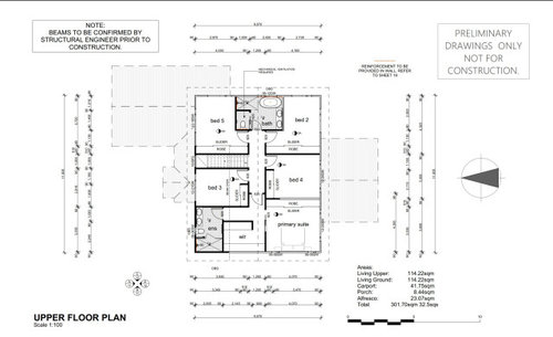
I am also hoping to add a separate toilet upstairs by sacrificing some of the WIR space (swap Bed4 with Ens & WIR + PWDR.




Comments (13)

  • 19 days ago

    Flipping considerations. Slope of land. Street infrastructure and trees. What you want to do with side strips

    Matty McCarthy thanked Kate
  • 19 days ago

    What are your minimum setbacks?

  • 19 days ago

    Hi Kate, the slope is very gentle from east to west. Street infrastructure isn't a problem. The incoming water supply is actually located beneath the carport area, as it is shown now.


    The setback is as it's drawn currently.


    With a wider East side corridor, I would create a better breezeway/Ventilation for SEQLD & better natural light source. I'm sorry, I should have put my location.

  • 19 days ago

    Then yes sounds a good idea to flip and move to western boundary

  • 19 days ago

    Four people using the upstairs bathroom will need a separate toilet with a basin. Having separate but only accessible via the bathroom is going to a massive traffic jam at peak times.

  • 19 days ago

    That was part of the dilemma

  • 19 days ago

    A Google earth shot which shows your property and how the neighbours properties act with yours

  • 19 days ago

    Powder room

  • 18 days ago

    Wow easier than I thought.

  • 18 days ago

    Siriuskey, ok but what are thinking. What am I missing?

  • 18 days ago

    I was thinking about your comment of opening up to the sides of your property, what would you be looking at or be overlooked by, units, another two story house

  • 15 days ago

    Wow ! Appreciate the effort. Love the GF & just try to keep the FF some what the same