Interior Design
Renovating
Project Of The Week
A Colourful, Top-to-Toe Renovation of a Run-Down Sydney Terrace
See how paint-box brights, vibrant art and contemporary touches were the making of this inner-city terrace renovation
In this Q&A series, we turn the spotlight on one thought-provoking renovation each week. Here, interior designer Kathy McKinnon of KMcK Interior Design reveals how she transformed a timeworn terrace, which had been used as a commercial space, into a vibrant and welcoming home for a colour-loving couple.
The facade before works.
What was the house like originally?
A rather neglected and dilapidated heritage build from around 1875 with a wide shop front. It was three storeys high, with Victorian- and Georgian-style characteristics.
Ready to renovate? Find an architect near you on Houzz
What was the house like originally?
A rather neglected and dilapidated heritage build from around 1875 with a wide shop front. It was three storeys high, with Victorian- and Georgian-style characteristics.
Ready to renovate? Find an architect near you on Houzz
The facade after works.
What wasn’t working for the owners?
The house had low ceilings, old paintwork, neglected cypress-pine floor boards, a pokey rear kitchen with red-painted joinery, an older bathroom and laundry with damp walls and mouldy tiles, and an outside toilet in the rear of the courtyard.
The homeowners, who have pretty eclectic tastes and love colour, wanted someone to help them bring it all together and make it the fabulous house they were dreaming of.
What wasn’t working for the owners?
The house had low ceilings, old paintwork, neglected cypress-pine floor boards, a pokey rear kitchen with red-painted joinery, an older bathroom and laundry with damp walls and mouldy tiles, and an outside toilet in the rear of the courtyard.
The homeowners, who have pretty eclectic tastes and love colour, wanted someone to help them bring it all together and make it the fabulous house they were dreaming of.
The floor plan before works.
What was the renovation process like?
From the outset, the client was very hands-on and sought brave and bold colour combinations, unexpected finishes, textures and wallpapers reminiscent of traditional English homes, with an edge of contemporary Sydney quirkiness. It was right up my alley.
It was a huge renovation. The three-storey terrace was completely gutted, with the exception of the facade, fireplaces and exposed brick walls.
What was the renovation process like?
From the outset, the client was very hands-on and sought brave and bold colour combinations, unexpected finishes, textures and wallpapers reminiscent of traditional English homes, with an edge of contemporary Sydney quirkiness. It was right up my alley.
It was a huge renovation. The three-storey terrace was completely gutted, with the exception of the facade, fireplaces and exposed brick walls.
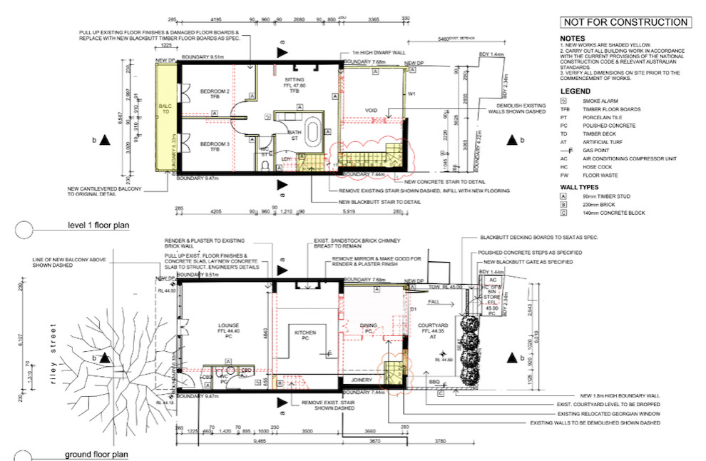
Floor plans for the ground floor (bottom) and first floor (top) after works.
It took a year to complete, during which time the owners lived in an apartment.
There were multiple challenges with the build, and having a heritage overlay added another level of complexity and compliance.
It was important to the client that heritage features – such as the fireplaces – were restored and featured in the contemporary, layered new look. The history of the building is a story that needed to be woven into the finished design.
It took a year to complete, during which time the owners lived in an apartment.
There were multiple challenges with the build, and having a heritage overlay added another level of complexity and compliance.
It was important to the client that heritage features – such as the fireplaces – were restored and featured in the contemporary, layered new look. The history of the building is a story that needed to be woven into the finished design.
The original living space, which had been used for commercial purposes.
What was your brief?
What was your brief?
- Imbue colour and vibrancy into the home.
- An entertainer’s kitchen.
- A design that maintained the home’s original heritage features.
The original living space, which had been used for commercial purposes.
Interior designer Kathy McKinnon.
What exactly did you do?
What exactly did you do?
- Moved the kitchen into the centre of the living area and installed a U-shaped island and custom black metal suspended shelving.
- Raised the ceiling at the rear of the ground floor.
- Opened the main living/dining/kitchen space to the courtyard with a six-metre-high wall of glazing. This also boosts natural light and ventilation. The lower section has wide bi-fold doors with overheard windows that reach the ceiling.
- Added an atrium ceiling at the rear with a contemporary feature staircase with a black metal balustrade.
- Retained the original heritage shopfront with six glass dome-shaped doors and a set of glass-panelled French doors in the centre. White French shutters have been installed to control the natural light.
- Selected environmentally responsible finishes and low-VOC (volatile organic compounds) paints.
- Specified energy-efficient LED lights throughout.
Where did most of the budget go?
Opening up the back of the house to create a huge atrium with six-metre-high ceiling.
Browse more images of Australian kitchens on Houzz
Opening up the back of the house to create a huge atrium with six-metre-high ceiling.
Browse more images of Australian kitchens on Houzz
Where did you splash out?
On the restoration of the heritage features, the beautiful kitchen joinery and the three bathrooms.
Where did you save?
The client is very good at finding fabulous vintage pieces, which resulted in great savings and helped give the home a sense of individuality.
On the restoration of the heritage features, the beautiful kitchen joinery and the three bathrooms.
Where did you save?
The client is very good at finding fabulous vintage pieces, which resulted in great savings and helped give the home a sense of individuality.
The original kitchen.
What was your thinking behind the colour and material palettes?
The interior celebrates colour and pattern, with playful and unexpected combinations throughout.
Each of the three floors has a different theme and takes you on a visual journey.
What was your thinking behind the colour and material palettes?
The interior celebrates colour and pattern, with playful and unexpected combinations throughout.
Each of the three floors has a different theme and takes you on a visual journey.
The new kitchen.
The ground floor houses the open-plan living/dining/kitchen area. The material palette consists of neutral, organic textures such as polished concrete, oak panelling, black metal shelving and a composite-marble kitchen benchtop.
The ground floor houses the open-plan living/dining/kitchen area. The material palette consists of neutral, organic textures such as polished concrete, oak panelling, black metal shelving and a composite-marble kitchen benchtop.
This palette mixes vibrant colours and dynamic patterns in furniture and artworks. The result is an inviting entertaining space with explosions of colour and pattern, which challenge and stimulate conversation and laughter.
The polished concrete floor is a perfect neutral canvas to showcase the art and object collections as well as the colourful statement furniture.
Visually, you are anchored by the neutrals while simulated by vibrant and enriching colours.
The polished concrete floor is a perfect neutral canvas to showcase the art and object collections as well as the colourful statement furniture.
Visually, you are anchored by the neutrals while simulated by vibrant and enriching colours.
What was your thinking behind the furniture choices?
They are a mix of iconic vintage and contemporary pieces. It was important that the owners could connect to each piece and that each piece had a bold uniqueness to it.
They are a mix of iconic vintage and contemporary pieces. It was important that the owners could connect to each piece and that each piece had a bold uniqueness to it.
A new staircase leads to the first and second levels.
Tell us about the perspex sculpture
This is a suspended perspex sculpture by Laura Sutton. It creates a focal point for the atrium that cleverly plays with illusion and colour as you move around the house.
This is a suspended perspex sculpture by Laura Sutton. It creates a focal point for the atrium that cleverly plays with illusion and colour as you move around the house.
The original main bedroom.
The new main bedroom on the third floor/attic.
Tell us about the main bedroom
The client really wanted a joyful explosion of colour and pattern in the main bedroom. For the walls, we chose Prism wallpaper from Cole & Son.
Tell us about the main bedroom
The client really wanted a joyful explosion of colour and pattern in the main bedroom. For the walls, we chose Prism wallpaper from Cole & Son.
Blue cabinetry handles and a warm pink (Porter’s Paints Nude) on the walls create a cosy vibe in the main bedroom. An organically shaped mirror from West Elm and a framed embroidery piece from India complete the look.
The original main bathroom.
Colour and Materials Palettes
Interior palette
Colour and Materials Palettes
Interior palette
- Bisanna Tiles green subway tiles to main bathroom.
- Autumn black stone bath by Pietra Bianco.
- Reece Alape Unisono basin.
- Two-pack polyurethane kitchen cabinetry finished in Porter’s Paints Jaguar semi-gloss.
- Silestone by Cosentino benchtops.
- Polished concrete floors.
- Sheridan bed linen.
- Lee Broom light fittings.
- Artworks by Scott Petrie and Mary Shackman, unless otherwise noted.
The new main bathroom.
Paint colours
Paint colours
- Exterior in Porter’s Paints Ayers Rock.
- Exterior trims in Porter’s Paints Obsidian.
- Wrought iron to balcony in Murobond Bridge paint in Urban.
- Living, dining and staircase in Porter’s Paints Rubble and Jaguar.
- Either side of the fireplace in Porter’s Paints Blue Reef.
- Interior trims in Dulux Lexicon Quarter.
- Main bedroom walls in Porter’s Paints Nude.
- Cole & Son Prism wallpaper to main bedroom.
- Ensuite wall painted in Porter’s Paints Mexican Lime.
The new main ensuite.
Your turn
Do you love this colourful renovation as much as we do? Tell us your favourite features in the Comments below. And don’t forget to save these images, like this story and join the conversation.
More
Want more colour inspiration? Check out 8 Expert Tips to Choosing the Perfect Paint Colour for Your Home
Your turn
Do you love this colourful renovation as much as we do? Tell us your favourite features in the Comments below. And don’t forget to save these images, like this story and join the conversation.
More
Want more colour inspiration? Check out 8 Expert Tips to Choosing the Perfect Paint Colour for Your Home































Answers by interior designer Kathy McKinnon of KMcK Interior Design.
Who lives here: A couple and their dog
Location: Surry Hills, NSW
Number of bedrooms and bathrooms originally: Two bedrooms and one bathroom
Number of bedrooms and bathrooms after works: Two bedrooms and three bathrooms
Size of the house: Around 170 square metres
Budget: Between $650,000 and $800,000
Architectural plans: ESNH Design
Builder: Mardini Constructions
How did Houzz help with this project?
The client found me on Houzz, and liked projects I had done that were on my Houzz profile. They connected with the way I had woven heritage with contemporary-modern in another project.